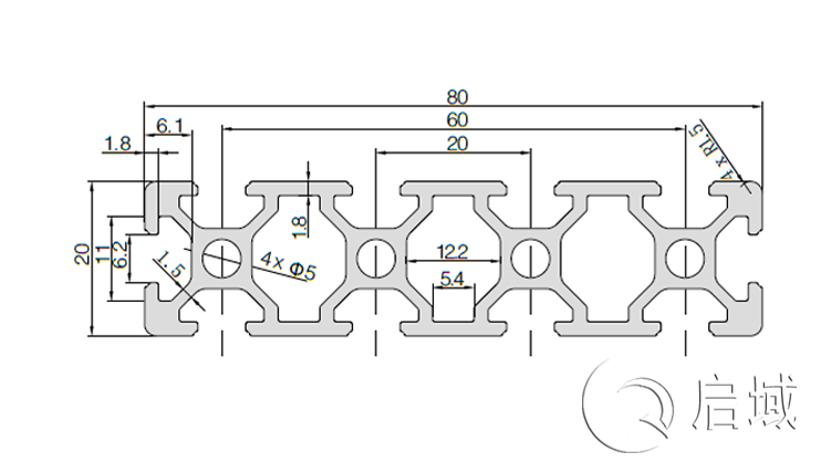
欧标工业铝型材中的欧标2080工业铝型材是欧标20系列铝型材中大型材,当然,大小是有比较才能得出的,这个20*80的规格是跟20*20,20*40这两款规格型材对比的哦??吹奖晏庖仓懒耍颐钦馄诘闹魈馐桥繁?/span>2080工业铝型材。
欧标2080工业铝型材货号为QY-6-2080,我们也可以叫它20*80欧标铝型材,它比较广泛的应用在大应力、高强度、支撑要求高的重载结构的框架组合,配套螺栓螺母通常采用20系列M5(多数)或M4专用T型螺母与内六角内部连接,如受力强度大可采用20系列滑块螺母与内六角螺栓内部连接。
上面这部分是欧标2080工业铝型材的应用范围和搭配使用的螺丝螺母的介绍,如果大家还有不太清楚的地方,或者想要了解这款铝型材的更多的参数值,可以联系启域金属哦,启域金属电话:021-67658689,好了,这期就到这里了,我们下期再见!
《该文章来源于上海启域金属有限公司原创 网址:http://yunyang.untbitm.cn/转载请注明》





沪公网安备31011702001213号
扫一扫,关注手机站